Property Details
This near new 4-bedroom duplex is positioned in the peaceful streets of Fairfield, open plan with plenty of natural sunlight, complete with stylish finishes throughout. Short distance to Fairfield and Canley Vale CBD, Train Station, Schools.
Features:
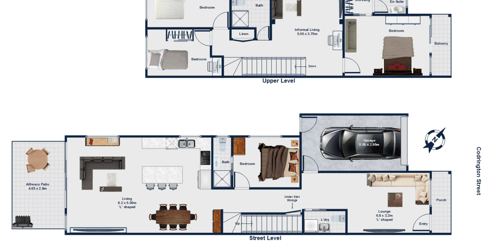
3 bedrooms upstairs with built-in robes.
Master bedroom with en-suite, walk-in robe, and private balcony.
Separate media / TV room, quality floating timber throughout.
1 bedroom downstairs with a second en-suite.
3 showers, 4 toilets, tiling up the ceiling, fully quality tiled.
Spacious lounge and large family/dining area.
Modern kitchen with a premium Cook top, Range hood.
An island breakfast bench and Dishwasher.
Ducted dual-zones air conditioner, 2 ceiling fans.
Fully tiled throughout. The interiors receive plenty of natural sunlight.
Single remote lock-up garage, additional 2 car spaces.
Security intercom, storage, 2 sky lights, alfresco, BBQ area.
This property has easy access to Fairfield, Canley Heights, and Liverpool CBD.
Ideal for growing families.
This is an opportunity to make your next family home.
Disclaimer: The above mentioned information has been furnished to us by the vendor and / or third parties. We have not verified whether or not that information is accurate, and do not have any belief one way or the other in its accuracy. We do not accept any responsibility to any person for its accuracy and do no more than pass it on.
All interested parties should make and rely upon their own inquiries in order to determine whether or not this information is, in fact, accurate.
Land area
226 sqm (approx)


















